平野区周辺エリアの不動産取引・リフォームのことはつばさホームへご相談ください。

物件NO:
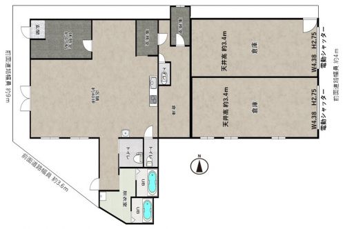
| 〈その他事業用〉 長吉六反4丁目貸店舗事務所倉庫 | |||
|---|---|---|---|
|
|||
| 所在地 | 大阪市平野区長吉六反4丁目 | ||
| 交通 | JR関西本線 久宝寺駅より徒歩20分 | ||
| 間取り | − | ||
| 使用面積 | 281.80m2 85.24坪 |
バルコニー | − |
| 賃料 | 61万6,000円 | − | − |
| 敷金 礼金 |
− 3ヶ月 |
保証金 敷引・償却 |
− − |
| 契約期間 | 5年 | 更新料 | − |
| 管理費等 | − | 保険 | 要 |
| その他費用 | − | ||
| 構造 | 鉄骨造 | 階数 | 2階建/1回 |
| 向き | 西 | 築年月 | 1988年5月 |
| 駐車場 | 有 | 総戸数 | − |
| 現況 | 賃貸中 | 引渡時期 | 即 |
| 設備/環境 | バス・トイレ別 | ||
| 備考 | 介護事業居抜き物件 定期借家契約5年(更新相談可) | ||
| 取引態様 | 仲介 | 情報登録日 | 2025年10月22日 |